ユウキ法律事務所ロゴ
弁護士コラム

弁護士コラム

建築・ライフスタイル・地方移住

南アルプスの自邸計画 〜二拠点生活を目指して〜

北杜市武川町・約8000坪の敷地における事務所併設住宅の構想

2021.06.28

山梨県北杜市武川町柳澤。南アルプス国立公園からわずか数キロ、手付かずの自然が残る約8000坪の広大な敷地に、自邸兼事務所を計画しました。このプロジェクトは単なる住宅建設ではなく、次世代のライフスタイルを模索する試みでもあります。

敷地とリニア計画

北杜市の立地とリニア中央新幹線による都心アクセス展望

計画の要となるのは、リニア中央新幹線の開通です。開通後は甲府から新宿までわずか15分。都心との距離が圧倒的に縮まることで、豊かな自然環境に身を置きながら都心での法務にも迅速に対応できる「二拠点生活」が現実のものとなります。

設計趣旨

本計画の設計趣旨

模型俯瞰

全体構成の模型俯瞰

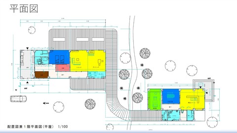
約8000坪というスケールだからこそ可能となる、周囲の環境を完全に取り込んだ配置計画。住宅と事務所を切り離しながらも渡り廊下で繋ぐことで、公私の調和を図っています。

全体配置図

事務所併設住宅の配置図兼平面図

立面図

四方からの立面計画

断面図

空間構成を示す断面図

南アルプスの自邸タイトル

南アルプスの自邸 〜二拠点生活を目指す〜

この地を拠点に、弁護士・建築士としての新しい活動をスタートさせる計画です。